編輯:北京凌鷹起重 瀏覽:5164 時間:2015-06-26
搬運吊裝鋼板用的起重真空吸盤系統具體分類,詳情如下:
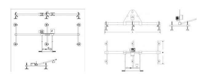
① 中型吸吊機適應于搬運各種板材類工件,
?大負載2噸
?板材長度可達6m,寬度3m
?可以適用于400度的高溫板材
?可以實現板材的垂直90度搬運
?可以實現板材的180度翻轉搬運
?特別適用于不銹鋼板
?特別適用于切割機,剪板機等的上下料
圖示:
②大型吸吊機適應于搬運大型的工件
?大負載50噸
?板材長度可達40m,寬度6m
?可以適用于400度的高溫板材
圖示:
如有問題,請咨詢北京凌鷹起重技術人員:010-57075072 或 010-57075073
上一條: 如何提高風電葫蘆運行的穩定性?
下一條: 一種新型的環鏈電動葫蘆平衡結構介紹

